20 Birch Grove, Tutshill, Chepstow, Monmouthshire
Property Features
- STUNNING MODERN, Two Double-Bedroom EXECUTIVE HOME, BEAUTIFULLY PRESENTED & Greatly ENHANCED
- STYLISH and CONTEMPORARY Presentation Throughout
- PRIVATE Rear Garden with LARGE SUN Terrace, Shed and Built-in BBQ
- Off Road PARKING for Two Vehicles
- GREAT LOCATION for access to all Motorway Networks for BRISTOL & CARDIFF, WALKING distance of local
- EPC B and COUNCIL Tax C
- Email NOW to VIEW
Property Summary
Full Details
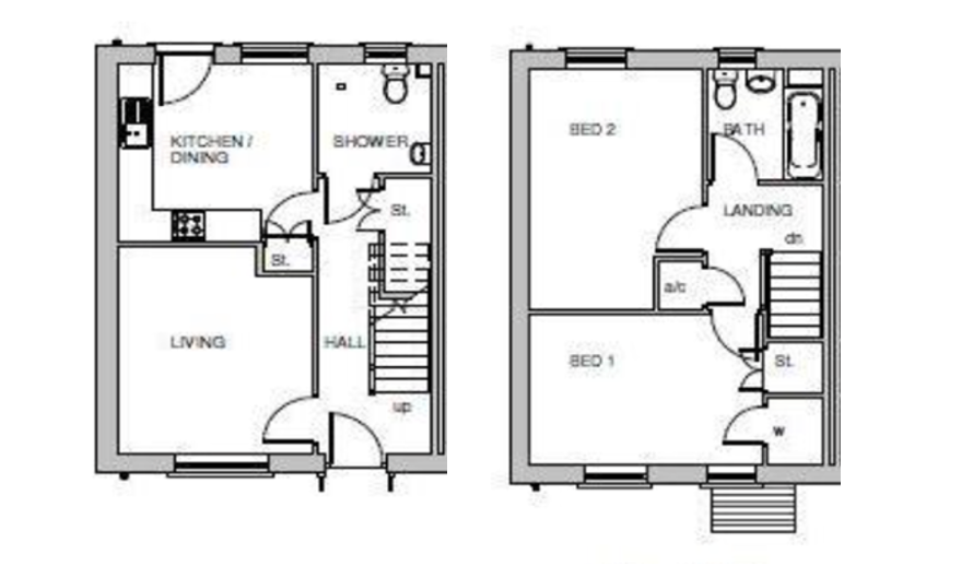
ENTRANCE
Rain Porch and courtesy lights, uPVC double-glazed front door into Hall with radiator, stairs to first floor, large walk in understairs cupboards and doors to: -
LOUNGE
(3.41m x 3.85m) uPVC double-glazed window to the front elevation, feature fireplace with fitted units and shelving to the recesses, radiator.
KITCHEN & DINER
(3.36m x 3.42m) uPVC double-glazed window and door at the rear elevation, fitted with a good range of CONTEMPORARY wall and base units with work surfaces over, inset sink unit, extractor fan, 4 ring gas cooker, space washing machine, fridge / freezer, and dishwasher. Good space for DINING TABLE and Chairs, radiator.
UTILITY ROOM / CLOAKROOM
(3.41m x 3.85m) uPVC double-glazed frosted window to the rear elevation, fitted with a good range of STYLISH base units with work surfaces over with wash basin, space for a dryer / washing machine, towel radiator.
FIRST FLOOR
LANDING
Loft inspection loft hatch, large walk-in cupboard. Doors off to: -
BEDROOM 1
(4.27m x 2.78m) uPVC double-glazed window to the front elevation, large walk-in cupboard and further storage cupboard and radiator.
BEDROOM 2
(2.79m x 4.45m) uPVC double-glazed window to the rear elevation, and radiator.
BATHROOM
MODERN Bathroom. Frosted uPVC double-glazed window to the rear elevation, fitted with a three-piece white suite with wall mounted wash hand basin, low level w.c. and panelled bath with shower over, towel radiator.
GROUNDS
To the front is a Good-sized DRIVEWAY. A gated side path leads to the FULLY ENCLOSED and good-sized rear garden laid with artificial grass, and large SUN TERRACE and with a wooden shed, and built in BBQ.
''' IN TOP 5 of BEST Estate Agents in WALES in the Industry NEGOTIATOR AWARDS ''' Adre Properties is GROWING THROUGH REPUTATION.
Adre Properties is an affordable and professional online Estate Agent dedicated to the South Wales Region and other Regions by Request. If you have either a property to SELL or RENT then give us a call to find out why we have been SHORTLISTED as BEST in WALES and see how we Can WORK for you!
Adre Properties is a Trading name of Adre Properties Ltd.
THE PROPERTY MISDESCRIPTIONS ACT 1991
References to the Tenure of a Property are based on information supplied by the Vendor. The Agent has not had sight of the title documents. Items shown within photographs are NOT included unless
COPYRIGHT
The information on this website are the copyright of Adre Properties Ltd. Prospective purchasers may download, store and use the material for both their own personal consideration and for those people they may need to consult with. However, unless the permission of Adre Properties Ltd has been sought, under NO circumstances may any content, be republished, retransmitted, redistributed or otherwise so that it causes the material to become available to any party or on any website, online service or bulletin board or reproduced as a hard copy or in other media form.
REFERRAL ARRANGEMENTS
Adre Properties Ltd and our Modern Auction Auctioneer may recommend the services of third parties to you. Whilst these services are recommended as it is believed they will be of benefit; you are under no obligation to use any of these services, and you should always consider your options before services are accepted. Where services are accepted Adre Properties Ltd or our Modern Auction Auctioneer may receive payment for the recommendation and you will be informed of any referral arrangement and payment prior to any services being taken by you.






























