16 Spring Gardens Terrace, Cardiff16 Spring Gardens Terrace, Cardiff(City), CF24 1QX
Property Features
- GREAT INVESTMENT or First Time Buyers
- 2 Bedroom Home, VIEWING ABSOLUTELY ESSENTIAL
- Situated superbly for EXCELLENT Access to the M4 (via A48 M) & Newport Road
- GREAT LOCATION, Close to all Local Amenities, Shops & Schools
- NO CHAIN
- Email to VIEW
Property Summary
Full Details
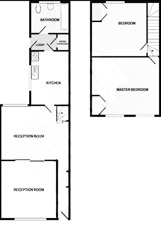
ENTRANCE HALL
uPVC front door with window above into Hall, half glazed door into: -
DINNING ROOM
(4.25m x 3.2m) uPVC double-glazed window to the rear elevation, radiator, staircase to first floor and door off to Kitchen and Double Dooos to: -
LOUNGE
(3.22m x 3.25m) uPVC double-glazed window to the front elevation, radiator
KITCHEN AND BREAKFAST ROOM
(2.35m x 2.62m) uPVC double-glazed windows to the rear side elevation. Fitted with a range of wall and base units with worksurfaces over, inset 1 ½ sink, gas hob and integral electric ovens. Plumbing for a washing machine and fridge freezer. Door to: -
REAR HALL
uPVC double-glazed back door, radiator, UTILITY CUPBOARD, door off to: -
DOWNSTAIRS BATHROOM
uPVC double-glazed window to the rear elevation, fitted with a pedestal sink, w.c., bath with electric shower over, radiator.
FIRST FLOOR
LANDING
Doors off to: -
BEDROOM 1
(4.26m x 3.26m) x2 uPVC double-glazed windows to the front elevation, built in wardrobe, radiator.
BEDROOM TWO
(3.34m x 3.26m) uPVC double-glazed windows to the front elevation, built in wardrobe, radiator.
GARDEN
To the REAR, is a large fully enclosed garden.
Adre Properties is an affordable and professional online Estate Agent dedicated to the South Wales Region. If you have either a property to SELL or RENT, then give us a call to find out how much you could save.
Adre Properties is a Trading name of Adre Properties Ltd.
THE PROPERTY MISDESCRIPTIONS ACT 1991
Adre Properties Ltd has not tested any apparatus, equipment, fixtures and fittings or services and so cannot verify that they are in working order or fit for the purpose. A Buyer is advised to obtain verification from their Solicitor and/or Surveyor. References to the Tenure of a Property are based on information supplied by the Seller. The Agent has not had sight of the title documents. A Buyer is advised to obtain verification from their Solicitor. Items shown within photographs are NOT included unless specifically mentioned within the sales particulars. However, they may be available by separate negotiation.
COPYRIGHT
Both the information and photographs on this website are the copyright of Adre Properties Ltd. Prospective purchasers may download, store and use the material for both their own personal consideration and for those people they may need to consult with. However, unless the permission of Adre Properties Ltd has been sought, under NO circumstances may any content, including photographs, be republished, retransmitted, redistributed or otherwise so that it causes the material to become available to any party or on any website, online service or bulletin board or reproduced as a hard copy or in other media form.
ADRE PROPERTIES COVID-19 ADVICE and OPERATIONAL PROTOCOL
Adre Properties follow the Coronavirus Workplace guidance for Employers and Employees and the Moving Home Regulations for VIEWING during the COVID-19 Pandemic.
In the first instance, all property viewings should be made Virtually. Please click on Adre Properties‘ Virtual Viewing Link within the property listing, this will take you to Adre Properties‘ uTube Channel.
Having watched the Virtual Viewing and you would like to progress to VIEW the Property, we ask that you please EMAIL Adre Properties to advise your proceedability and suggest when you would like to view. Please be mindful that we do need notice on physical viewings as properties must have been vacated and/or deep cleaned prior to a viewing.
In line with the UK Guidance, we respectfully ask that no more than 2 people (from the same household) attend the viewing. Young children (unless carried) at this time cannot accompany people viewing inside houses. We appreciate that this is often difficult, so please advise us of your situation as we might be able to suggest options available to you.
The UK Guidance states that if you are shielding or have been displaying coronavirus symptoms in the last 14 days you should not attend a viewing.
In order to minimise risk, PPE (mask or face covering and disposable gloves (to reduce possible contamination from surfaces)) must be worn whilst in the property. If you do not have your own, please ask our Agent as we have PPE Packs available.
We respectfully ask that all reasonable measures are taken to comply with social distancing and ensure a 2-meter distance with our Adre Properties Agent.
If you have any concerns or questions, please do not hesitate to contact Adre Properties. Further information is available at:
Moving Home during the Coronavirus Pandemic:
Keep Wales Safe at Work






























